Требования к очищенной воде: соответствие нормативам СанПиН 2.1.4.1074-01
Качество исходной воды: железо общее до 2,5 мг/дм3, марганец до 0,07 мг/дм3, жесткость – до 8,2 ºЖ, запах – до 3,0 б
Характеристики установки:
- Производительность установки: 70,0 м3/сутки
- Максимальный часовой расход: 4,5 м3/ч
- Тип исполнения: размещение оборудования в блочном здании
- Режим работы станции: автоматический, с периодическим обслуживанием
- Электропитание: 380 В, 50 Гц
- Габаритные размеры, мм: 9000 х 2800 х 3000
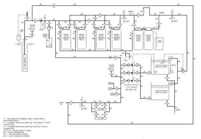
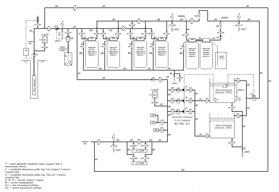
Принципиальная схема системы очистки воды:
Исходная вода из скважин подается на очистку. По сигналу от импульсного счетчика пропорционально расходу воды дозируется раствор гипохлорита натрия. Затем вода направляется на блок фильтрации. Данная ступень предназначена для осветления воды, удаления хлопьев образовавшихся загрязнений. Блок фильтрации состоит из 4-х параллельно работающих фильтров с автоматическими клапанами управления. Затем часть расхода воды для снижения общей жесткости направляется на ионообменную установку непрерывного действия.
Очищенная вода накапливается в резервуарах чистой воды. Для подачи воды потребителю предусмотрена насосная станция II-го подъема
Заключительной ступенью очистки является блок УФ обеззараживания.
