Объект: блочная станция очистки воды ЛСВ 100-20, с. Ермаки, Тюменская область, Викуловский район
Задача объекта: очистка хозяйственно-питьевой воды из скважины, подача в водопроводную разводящую сеть
Требования к очищенной воде: соответствие требованиям СанПиН 2.1.4.1074-01 по Fe, Mn, мутности, бакбезопасности
Качество исходной воды: железо – до 3,0 мг/дм3, марганец – до 0,18 мг/дм3, перманганатная окисляемость – до 5,0 мгО/дм3
Характеристики установки:
- Производительность: 96,0 м3/сутки
- Пиковый расход: 4,0 м3/ч
- Тип исполнения станции: исполнение I, блочно-комплектная установка
- Режим работы станции: автоматический, с периодическим обслуживанием.
- Электропитание: 380 В, 50 Гц, 8 кВт
- Габаритные размеры: 6000 х 2500 х 3100 мм
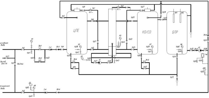
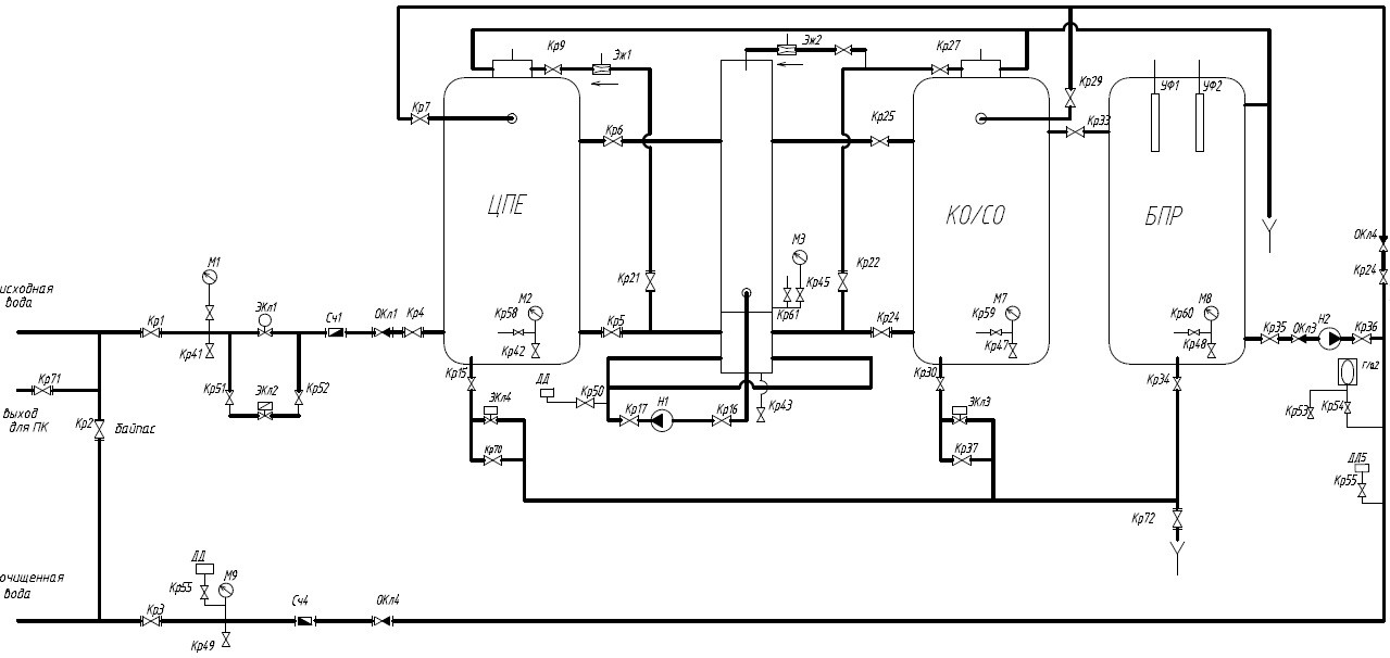
Принципиальная схема системы очистки воды:
Принципиальная технологическая схема безреагентной очистки воды выглядит следующим образом. Исходная вода поступает в циркуляционно-подпиточную емкость, затем проходит через фильтрующую загрузку и через перелив попадает в приемную камеру кавитатора. Далее предусмотрен гидродинамический активатор воды.
Из рабочей камеры кавитатора вода попадает в распределительную камеру, из которой расчетные потоки поступают в нескольких направлениях:
- в зону коагуляции коагулятора-сборника осадка;
- в первый контур кавитатора;
- во второй контур кавитатора.
Вода, циркулирующая по первому контуру, насыщается кислородом воздуха через эжектор и затем смешивается с исходной водой от скважины, что способствует началу окислительных процессов и коагуляции.
Вода, циркулирующая по второму контуру, насыщаясь кислородом воздуха также через эжектор, обеспечивает увеличение количества растворенных газов в воде.
Вода, поступающая в зону коагуляции коагулятора-сборника осадка, проходит через многоконтурный отделитель осадка. В отделителе происходит резкое гашение скорости движения воды, в результате чего скоагулированные хлопья загрязнений выпадают в зону накопления осадка.
Накопленный осадок удаляется через сливные патрубки емкостей. Предусмотрено автоматическое и ручное удаление осадка.
Не растворившийся воздух удаляется через контуры дегазации.
Затем вода, пройдя через фильтрующую и стабилизационную загрузку, свободным изливом поступает в емкость очищенной воды. Емкость служит для обеззараживания и накопления воды. обеззараживание производится блоком ультрафиолетовых ламп. Из емкости вода насосами II-го подъема подается в сеть потребителя.





